
Àü±â ¼³°è

Fine ELECÀº °ÇÃà ¹× ¿£Áö´Ï¾î¸µÀ» À§ÇÑ 4M BIM ¼ÒÇÁÆ®¿þ¾î Á¦Ç°±º ¿¡ ¼ÓÇÕ´Ï´Ù. AutoCAD¿Í À¯»çÇÑ È¯°æÀ» ±â¹ÝÀ¸·Î Çϸç AutoCAD¿Í ÀÇ Å¹¿ùÇÑ È£È¯¼ºÀ» À§ÇØ DWG¸¦ ±âº» ÆÄÀÏ Çü½ÄÀ¸·Î »ç¿ëÇÕ´Ï´Ù.
4M BIM ¼ÒÇÁÆ®¿þ¾î´Â BIM Àü¹®°¡µé¿¡°Ô AutoCAD »ç¿ëÀÚ¿¡°Ô °¡Àå Á÷°üÀûÀÎ ÀüȯÀ» Á¦°øÇÏ´Â BIM ¼ÒÇÁÆ®¿þ¾î·Î À¯¸íÇÕ´Ï´Ù. °¡°Ýµµ ÁÖ¿ä °æÀï»çº¸´Ù ÃÖ´ë 4¹è ³·½À´Ï´Ù.
»õ·Î¿î FineELEC 19 Ãß°¡ °í±Þ ±â´ÉÀÌ Å¾ÀçµÈ ÁÖ¿ä ¾÷±×·¹À̵å
BIM Çõ½ÅÀû µðÀÚÀÎ: ODA-Teigha ¶óÀ̺귯¸®¿Í 64ºñÆ® ¾ÆÅ°ÅØÃ³¸¦ ±â¹ÝÀ¸ ·Î ÇÑ Àüü ÄÚµå À籸¼ºÀ» ÅëÇÑ »õ·Î¿î BIM µðÀÚÀÎÀ¸·Î µð½ºÇ÷¹ÀÌ ¿£Áø°ú ¿±â/ÀúÀå ¹× Àбâ/¾²±â ±â´É¿¡¼ Ź¿ùÇÑ ¼º´ÉÀ» º¸ÀåÇÕ´Ï´Ù
»õ·Î¿î ÀÎÅÍÆäÀ̽º: ¸®º» ¸Þ´º, Çâ»óµÈ µµ±¸ ¸ðÀ½, Á¤±³ÇÑ ¼Ó¼º ÆÐ³Î, BIM ¿£ ÅÍÆ¼¸¦ À§ÇÑ Çâ»óµÈ ´ëÈ »óÀÚ, ±¤¹üÀ§ÇÑ ±×¸³ »ç¿ëÀ» Æ÷ÇÔÇÑ »õ·Î¿î BIM ÀÎ ÅÍÆäÀ̽ºÀÔ´Ï´Ù.
°í±Þ ¸ðµ¨¸µ ±â´É
- »õ·Î¿î BIM °´Ã¼(¿¹: ¸ðµç ¸ð¾çÀÇ º®, ¸ð¼¸® °³±¸ºÎ, ÇÕ¼º °Ç¹° ¿ä¼Ò°¡ ÀÖ´Â º® Á¶ÀÎÆ®ÀÇ ¿¬¼Ó Ç¥¸é µî)
- È®ÀåµÈ ¼Ó¼º ÆÐ³Î°ú ÇÊÅÍ ¼±ÅÃ, ±×¸³ »ç¿ëÀ» ÅëÇØ BIM °´Ã¼¸¦ ºü¸£°Ô Æí ÁýÇÒ ¼ö ÀÖ½À´Ï´Ù.
- Áö´ÉÇü ºôµù ·¹º§/Ãþ °ü¸®(Xrefs·Î¼ÀÇ À̹ÌÁö, ½º¸¶Æ® ·¹º§ ÆíÁý±â µî). Àü±â/HVAC/¹è°ü µîÀÇ ³×Æ®¿öÅ©¸¦ ¼³°èÇÏ´Â µ¿¾È Ãæµ¹ °¨Áö
- °ø°£¿¡¼ ´Ù¾çÇÑ ³ôÀ̸¦ Á¤ÀÇ/ÆíÁýÇÒ ¼ö ÀÖ´Â À¯¿¬¼º. 3D °ÇÃà ¸ðµ¨¿¡ Àü±â ¼³Ä¡ µµ¸éÀ» ÅëÇÕÇÕ´Ï´Ù.
- °Ç¹° ¼Ð°ú MEP ¼³ºñ¸¦ ¸ðµÎ »ç½ÇÀûÀ¸·Î º¼ ¼ö ÀÖ´Â °íǰÁúÀÇ ºü¸¥ ·»´õ ¸µÀ» Á¦°øÇÕ´Ï´Ù.
¿Ïº®ÇÑ BIM ȣȯ¼º ¹× »óÈ£ ¿î¿ë¼º: ¸ðµç BIM ¾ÖÇø®ÄÉÀ̼Ç(¿¹: Revit, Archicad µî)°úÀÇ ÃÖ´ë »óÈ£ ¿î¿ë¼ºÀ» Á¦°øÇϰí FINE-MEP ¼öÁ÷ ºÐ¾ß»Ó¸¸ ¾Æ ´Ï¶ó IDEA¿Í FineGREEN°úµµ ¿øÈ°ÇÏ°Ô ÅëÇյ˴ϴÙ
»õ·Î¿î °·ÂÇÑ CAD ¿£Áø: ÃֽŠ4MCAD v.19ÀÇ ¸ðµç »õ·Î¿î ±â´ÉÀ» ³»ÀåÇÏ ¿© ±× ¾î´À ¶§º¸´Ù ´õ¿í °·ÂÇÑ ¿£ÁøÀÔ´Ï´Ù.
FineELEC ±â´É ¹× ÇÏÀ̶óÀÌÆ®
½¬¿î Àüȯ
CAD »ç¿ëÀÚ¸¦ À§ÇÑ BIM ¹× MEP ¼ÒÇÁÆ®¿þ¾î·ÎÀÇ °¡Àå ½¬¿î Àüȯ
Fine ELEC¿¡¼´Â Æú¸®¶óÀÎ ±×¸®±â, Æ®¸®¹Ö ¶Ç´Â È®Àå°ú °°ÀÌ ¸ðµç CAD »ç¿ë ÀÚ°¡ ¾Ë°í ÀÖ´Â ¸Å¿ì °£´ÜÇÑ 2D ¸í·É¸¸ ¼÷ÁöÇÏ¸é ¼ÒÇÁÆ®¿þ¾î°¡ ÀÌ·¯ÇÑ ¸Å¿ì °£´ÜÇÑ ´Ü°è¸¦ ÅëÇØ 2D ¹× 3D ÇÁ·ÎÁ§Æ®¸¦ ºôµåÇÕ´Ï´Ù. Fine ELECÀº AutoCAD¿Í À¯»çÇÑ ¸ð¾ç°ú ´À³¦°ú °í±Þ BIM ±â¼úÀ» °áÇÕÇÏ¿© ÇÁ·ÎÁ§Æ®¿Í ³× Æ®¿öÅ©¸¦ ±×¸®´Â µ¥ µµ¿òÀÌ µË´Ï´Ù.
¸î ¹øÀÇ Å¬¸¯À¸·Î °Ç¹°À» ±×¸®¼¼¿ä
3D BIM ¸ðµ¨À» ±×¸®´Â °Ô ±ÍÂú´Ù¸é ¹è°æ¿¡ DWG µµ¸éÀ» »ç¿ëÇϰųª Fine ELECÀÇ CAD ±â´ÉÀ» »ç¿ëÇÏ¿© Á÷Á¢ ±×¸± ¼ö ÀÖ½À´Ï´Ù.
BIM °´Ã¼·Î °Ç¹°À» 3D·Î ±×¸®´Â °ÍÀº ÄÉÀ̺í, º¸È£ ÀåÄ¡, ´Ü¶ô Á¦¾î, °¢ ¶ó ÀÎÀÇ Çã¿ë Àü·ù, Àü¾Ð °ÇÏ µîÀ» °è»êÇÏ´Â µ¥ ÇÊ¿äÇÏÁö ¾ÊÁö¸¸ Fine ELECÀº ¸î ¹øÀÇ Å¬¸¯¸¸À¸·Î À̸¦ ¼öÇàÇÏ´Â µ¥ µµ¿òÀÌ µË´Ï´Ù. °è»ê ¹× ¼³°è´Â µ¶¸³ ÀûÀÎ ¸ðµâÀÔ´Ï´Ù. ¿¹¸¦ µé¾î, ³×Æ®¿öÅ©¸¦ °è»êÇϱâ À§ÇØ Ç¥¿¡ µ¥ÀÌÅ͸¸ ÀÔ·Â ÇÏ·Á´Â °æ¿ì ÀϺΠÇÁ·ÎÁ§Æ®¿¡¼´Â Çϳª¸¸ »ç¿ëÇÒ ¼ö ÀÖ½À´Ï´Ù.
°Ç¹°À» ±×¸®·Á¸é AutoBLD ¸Þ´ºÀÇ Áö´ÉÇü ¸Å°³º¯¼ö °´Ã¼¸¦ »ç¿ëÇÏ¿© Æò¸éµµ ¿¡ ÁýÁßÇϱ⸸ Çϸé Fine ELEC¿¡¼ 3D¸¦ ºôµåÇÕ´Ï´Ù. °´Ã¼¸¦ °£´ÜÈ÷ µÎ ¹ø Ŭ¸¯ÇÏ¸é ¼öÁ¤ÇÒ ¼ö ÀÖ´Â ¼Ó¼ºÀÌ Ç¥½ÃµË´Ï´Ù. ´Ù¸¥ ¼ÒÇÁÆ®¿þ¾î¸¦ »ç¿ëÇÏÁö ¾Ê°íµµ BIM ¸ðµ¨À» ¸¸µé°Å³ª ¼öÁ¤ÇÏ´Â µ¥ ÇÊ¿äÇÑ ¸ðµç µµ±¸°¡ ÀÖ½À´Ï´Ù.
¶Ç´Â ´Ù¸¥ 4M BIM ¼ÒÇÁÆ®¿þ¾î·Î ¸¸µç ÇÁ·ÎÁ§Æ®¸¦ ¿ ¼öµµ ÀÖÀ¸¸ç °Ç¹°À» ±× ¸± Çʿ䰡 ¾ø½À´Ï´Ù. ¿¹¸¦ µé¾î IDEA Architecture·Î ¸¸µç ÇÁ·ÎÁ§Æ®¸¦ ¿ ¼ö ÀÖ½À´Ï´Ù.
BIM °´Ã¼·Î °Ç¹°À» 3D·Î ±×¸®´Â °ÍÀº ÄÉÀ̺í, º¸È£ ÀåÄ¡, ´Ü¶ô Á¦¾î, °¢ ¶ó ÀÎÀÇ Çã¿ë Àü·ù, Àü¾Ð °ÇÏ µîÀ» °è»êÇÏ´Â µ¥ ÇÊ¿äÇÏÁö ¾ÊÁö¸¸ Fine ELECÀº ¸î ¹øÀÇ Å¬¸¯¸¸À¸·Î À̸¦ ¼öÇàÇÏ´Â µ¥ µµ¿òÀÌ µË´Ï´Ù. °è»ê ¹× ¼³°è´Â µ¶¸³ ÀûÀÎ ¸ðµâÀÔ´Ï´Ù. ¿¹¸¦ µé¾î, ³×Æ®¿öÅ©¸¦ °è»êÇϱâ À§ÇØ Ç¥¿¡ µ¥ÀÌÅ͸¸ ÀÔ·Â ÇÏ·Á´Â °æ¿ì ÀϺΠÇÁ·ÎÁ§Æ®¿¡¼´Â Çϳª¸¸ »ç¿ëÇÒ ¼ö ÀÖ½À´Ï´Ù.
°Ç¹°À» ±×¸®·Á¸é AutoBLD ¸Þ´ºÀÇ Áö´ÉÇü ¸Å°³º¯¼ö °´Ã¼¸¦ »ç¿ëÇÏ¿© Æò¸éµµ ¿¡ ÁýÁßÇϱ⸸ Çϸé Fine ELEC¿¡¼ 3D¸¦ ºôµåÇÕ´Ï´Ù. °´Ã¼¸¦ °£´ÜÈ÷ µÎ ¹ø Ŭ¸¯ÇÏ¸é ¼öÁ¤ÇÒ ¼ö ÀÖ´Â ¼Ó¼ºÀÌ Ç¥½ÃµË´Ï´Ù. ´Ù¸¥ ¼ÒÇÁÆ®¿þ¾î¸¦ »ç¿ëÇÏÁö ¾Ê°íµµ BIM ¸ðµ¨À» ¸¸µé°Å³ª ¼öÁ¤ÇÏ´Â µ¥ ÇÊ¿äÇÑ ¸ðµç µµ±¸°¡ ÀÖ½À´Ï´Ù.
¶Ç´Â ´Ù¸¥ 4M BIM ¼ÒÇÁÆ®¿þ¾î·Î ¸¸µç ÇÁ·ÎÁ§Æ®¸¦ ¿ ¼öµµ ÀÖÀ¸¸ç °Ç¹°À» ±× ¸± Çʿ䰡 ¾ø½À´Ï´Ù. ¿¹¸¦ µé¾î IDEA Architecture·Î ¸¸µç ÇÁ·ÎÁ§Æ®¸¦ ¿ ¼ö ÀÖ½À´Ï´Ù.
AutoCAD¿ÍÀÇ Å¹¿ùÇÑ È£È¯¼º
´Ù¸¥ BIM MEP ¼ÒÇÁÆ®¿þ¾î¿Í ´Þ¸® Fine ELECÀº DWG¸¦ ±âº» ÆÄÀÏ Çü½ÄÀ¸·Î »ç¿ëÇϰí BIM ÇÁ·ÎÁ§Æ®¿¡¼ »ç¿ëÇÒ ¸ðµç Á¤±³ÇÑ °´Ã¼¸¦ º¤ÅÍ·Î º¯È¯ÇÏ´Â ±â´ÉÀ» Æ÷ÇÔÇÕ´Ï´Ù. °£´ÜÇÑ º¤ÅÍ·Î º¯È¯ÇÏ¸é °´Ã¼°¡ AutoCAD¢ç¿¡¼ CAD ¿£Æ¼Æ¼·Î Ç¥½ÃµÇ¾î »ç¿ëÀÚ°¡ ¼öÁ¤ÇÒ ¼ö ÀÖ½À´Ï´Ù. µû¶ó¼ ´Ù¸¥ Àü¹®°¡¿Í 2D ¶Ç´Â 3D ÆÄÀÏÀ» °øÀ¯ÇÏ´Â °ÍÀÌ ÈξÀ ½±½À´Ï´Ù.
Àüü CAD ¼ÒÇÁÆ®¿þ¾î Æ÷ÇÔ
ÀÌ MEP ¼ÒÇÁÆ®¿þ¾î¿¡´Â AutoCAD¢ç¿¡ ´ëÇÑ ´ë¾ÈÀÎ 4MCADÀÇ ¸ðµç ±â´ÉÀÌ Æ÷ÇԵǾî ÀÖ½À´Ï´Ù. µÎ °¡Áö ¼ÒÇÁÆ®¿þ¾î¸¦ Çϳª·Î ¾òÀ» ¼ö ÀÖÀ¸¹Ç·Î CAD¸¦ »ç¿ëÇÏ¿© ÀϺΠDWG µµ¸éÀ» ÆíÁýÇÒ ¼ö ÀÖ½À´Ï´Ù.

³×Æ®¿öÅ©
Áö´ÉÇü ³×Æ®¿öÅ© ¼³°è
´Ù¸¥ BIM ¼ÒÇÁÆ®¿þ¾î¿Í´Â ´Þ¸®, Fine ELECÀÇ °í±Þ½º·´°í Á÷°üÀûÀÎ BIM ±â ¼úÀº ¼Óµµ¸¦ Èñ»ýÇØ¼°¡ ¾Æ´Õ´Ï´Ù. ¿ÀÈ÷·Á ±× ¹Ý´ëÀÔ´Ï´Ù. ¸î °³ÀÇ ¼±¸¸ ±× ¸®¸é ¼ÒÇÁÆ®¿þ¾î°¡ ³ª¸ÓÁö¸¦ ó¸®ÇÕ´Ï´Ù.
±¤¹üÀ§ÇÑ ±¸¼º ¿ä¼Ò ¶óÀ̺귯¸®
Fine ELEC¿¡´Â ±¤¹üÀ§ÇÑ ¸®¼ÁÅÍ ¹× Àü±â ÀåÄ¡ ¶óÀ̺귯¸®°¡ Æ÷ÇԵǾî ÀÖ½À ´Ï´Ù: ÆÐ³Î, ¸®¼ÁÅÍ, °¡ÀüÁ¦Ç°, Á¶¸í, ½ºÀ§Ä¡... Á¶¸í°ú °°Àº ÀϺΠ¶óÀ̺귯¸® ´Â ÀÚµ¿À¸·Î ¹æ¿¡ ¹èÄ¡ÇÒ ¼ö ÀÖ½À´Ï´Ù. ÀÌ·¯ÇÑ ¶óÀ̺귯¸®´Â »ç¿ëÀÚ°¡ ½Éº¼ À» º¯°æÇÏ°í ´õ ¸¹Àº ±¸¼º ¿ä¼Ò¸¦ Ãß°¡ÇÒ ¼ö ÀÖÀ¸¹Ç·Î »ç¿ëÀÚ°¡ È®ÀåÇÒ ¼öµµ ÀÖ½À´Ï´Ù.
Àü±â ÄÉÀ̺íÀÇ ÀÚµ¿ ¼³°è(Autorouting)
ÄÉÀ̺íÀº °£´ÜÇÑ ¸í·É(Æú¸®¶óÀθ¸ »ç¿ë)À¸·Î ±×¸± ¼ö ÀÖÁö¸¸, "º®°ú ÆòÇàÇÑ ÄÉÀ̺í, ¼ö½Å±â¿¡ ÀÚµ¿À¸·Î ¿¬°á"°ú °°Àº Àü¹®ÀûÀÎ ¶ó¿ìÆÃ ¸í·ÉÀ» Ȱ¿ëÇÏ¿© ÇÁ·Î¼¼½º ¼Óµµ¸¦ ³ôÀÏ ¼öµµ ÀÖ½À´Ï´Ù.
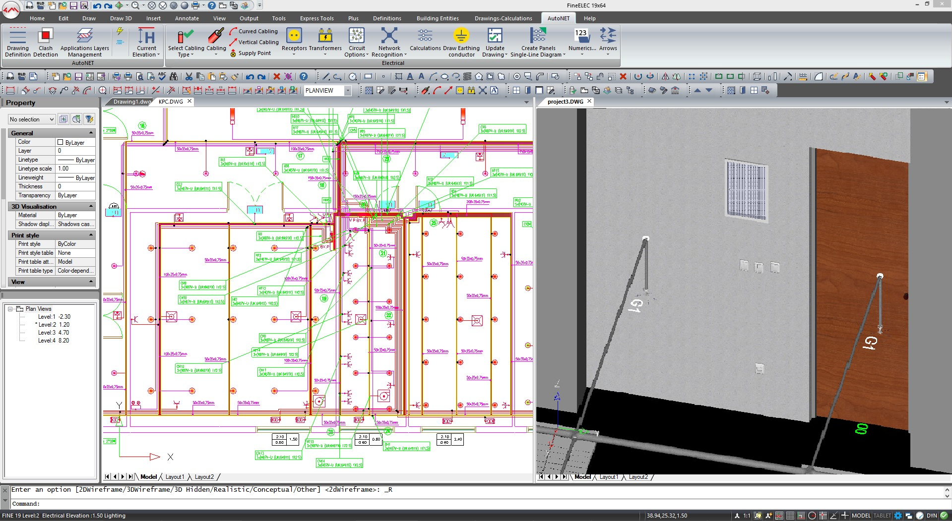
°è»ê¿¡¼ µµ¸é ¾÷µ¥ÀÌÆ®
°è»êÀ» ¼öÇàÇÑ ÈÄ °è»ê °á°ú¸¦ ¹ÙÅÁÀ¸·Î µµ¸éÀ» ¾÷µ¥ÀÌÆ®ÇÏ°í °á°ú¿¡ µû¸¥ Á¤º¸¸¦ Æò¸éµµ¿¡ »ðÀÔÇÒ ¼ö ÀÖ½À´Ï´Ù.
Fine ELECÀº µµ¸é¿¡ »ç¿ëµÈ ±âÈ£ÀÇ Àǹ̸¦ º¸¿©ÁÖ´Â ¹ü·Ê Ç¥¸¦ ÀÚµ¿À¸·Î ¸¸ µå´Â µ¥ µµ¿òÀ» ÁÖ¸ç, ½Ã½ºÅÛ ´ÙÀ̾î±×·¥°ú ÆÐ³Î µµ¸é°ú °°Àº ¸ðµç ±â¼ú µµ ¸éÀ» »ý¼ºÇÏ´Â µ¥µµ µµ¿òÀ» ÁÝ´Ï´Ù.
Fine ELECÀº µµ¸é¿¡ »ç¿ëµÈ ±âÈ£ÀÇ Àǹ̸¦ º¸¿©ÁÖ´Â ¹ü·Ê Ç¥¸¦ ÀÚµ¿À¸·Î ¸¸ µå´Â µ¥ µµ¿òÀ» ÁÖ¸ç, ½Ã½ºÅÛ ´ÙÀ̾î±×·¥°ú ÆÐ³Î µµ¸é°ú °°Àº ¸ðµç ±â¼ú µµ ¸éÀ» »ý¼ºÇÏ´Â µ¥µµ µµ¿òÀ» ÁÝ´Ï´Ù.

°è»ê
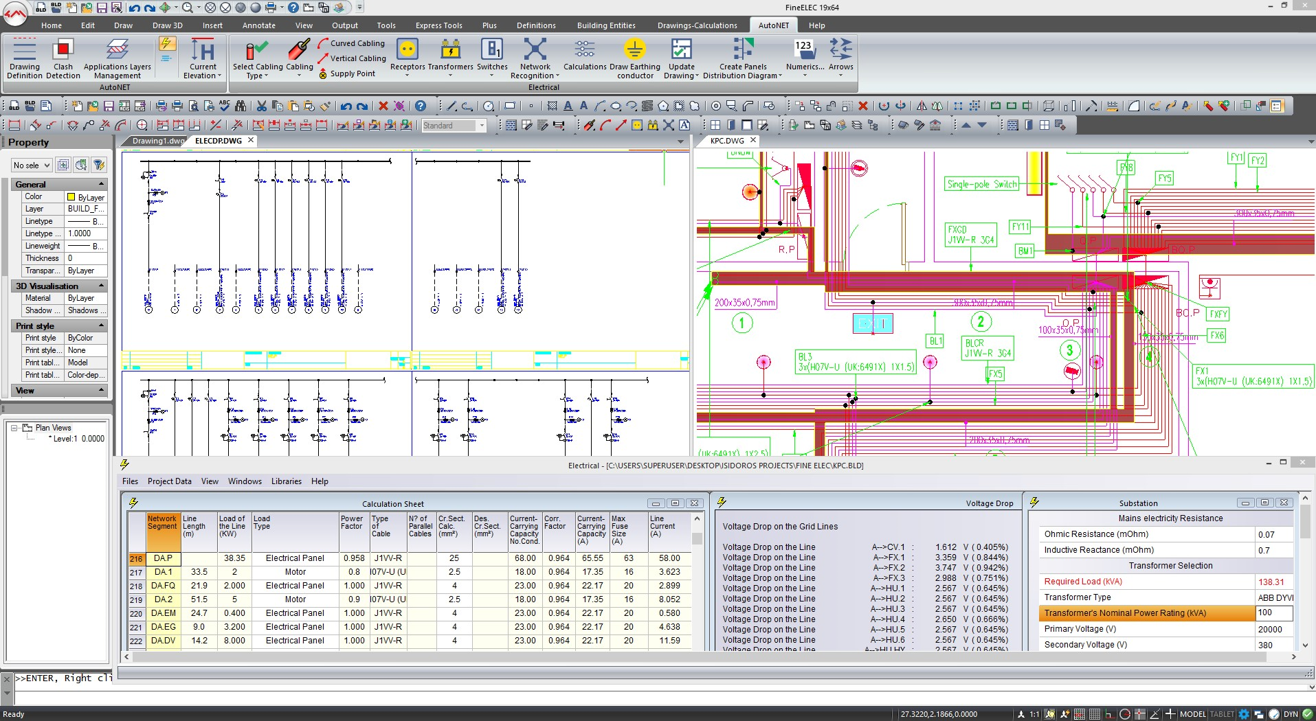
Àü±â ¼³ºñ °è»ê
Fine ELECÀÇ °è»ê ¸ðµâÀº ¼³Ä¡ µµ¸é°ú ±ä¹ÐÇÏ°Ô »óÈ£ ÀÛ¿ëÇÕ´Ï´Ù.
°è»êÀº HD 384, IEC 60364, BS 7671 ¹× VDE Ç¥ÁØ¿¡ µû¶ó ¼öÇàµË´Ï´Ù.
°è»êÀº HD 384, IEC 60364, BS 7671 ¹× VDE Ç¥ÁØ¿¡ µû¶ó ¼öÇàµË´Ï´Ù.
µµ¸é¿¡¼ °è»ê
Fine ELECÀÇ °è»ê ¸ðµâÀº µµ¸éÀ» ÀÐ°í °è»êÀ» ÁøÇàÇÏ´Â µ¥ ÇÊ¿äÇÑ ¸ðµç ¼¼ ºÎ Á¤º¸¸¦ Ç¥·Î Ç¥½ÃÇÕ´Ï´Ù. ¹°·Ð, ¿¹¸¦ µé¾î ³×Æ®¿öÅ©ÀÇ ¹Ì·¡ È®ÀåÀ» ¿¹»ó ÇÏ·Á´Â °æ¿ì ÀÌ·¯ÇÑ µ¥ÀÌÅ͸¦ ¼öÁ¤ÇÒ ¼ö ÀÖ½À´Ï´Ù.
¸î ¹øÀÇ Å¬¸¯¸¸À¸·Î ¸ðµç °á°ú¸¦ ¾òÀ¸¼¼¿ä
ÁÖº¯ ¿Âµµ, ÄÉÀÌºí ¼³Ä¡ ¹æ¹ý ¹× ¼ö´Ü µî ¸ðµç »ó´ëÀûÀÎ ¸Å°³º¯¼ö¸¦ °í·ÁÇÏ ¿© ÄÉÀÌºí ¹× º¸È£ ÀåÄ¡¸¦ °è»êÇÒ ¼ö ÀÖ½À´Ï´Ù.
Áß°£ °è»ê °á°ú(¿¹: °¢ ¶óÀÎÀÇ Çã¿ë Àü·ù, Àü¾Ð °ÇÏ µî)µµ Á¦½ÃµË´Ï´Ù. ÃÖÀû È ·çƾ(¿¹: ÀÚµ¿ À§»ó ÇÒ´ç) ¹× Á¦¾î ÀýÂ÷(¿¹: ´Ü¶ô Á¦¾î µî)µµ ¼öÇàµË´Ï´Ù.
¶ÇÇÑ ÀÌ ÇÁ·Î±×·¥Àº ÀÚÀç ¸ñ·Ï°ú ÀÏ·ÃÀÇ ±â¼ú ¼³¸íÀ» »ý¼ºÇÕ´Ï´Ù. ¸ðµç °á°ú ´Â °è»ê Ãâ·Â¿¡ Ç¥½ÃµÇ°í ¿ÏÀüÈ÷ ¹®¼ÈµË´Ï´Ù. °á°ú´Â µµ¸éÀ¸·Î ´Ù½Ã Àü¼Û µÇ°í »ç¿ëÀÚ Á¤ÀÇÇÒ ¼ö ÀÖ´Â °è»ê º¸°í¼·Î ³»º¸³»Áý´Ï´Ù.

2D Ãâ·Â
Àü±â ¼³ºñÀÇ ¸ðµç Àü±â µµ¸éÀ» ¾òÀ¸¼¼¿ä
³×Æ®¿öÅ© ¼³°è¿Í °è»êÀ» ÁøÇàÇÏ°í ³ª¸é ´ç»çÀÇ Àü±â ¼ÒÇÁÆ®¿þ¾î¸¦ ÀÌ¿ëÇÏ ¿© ÇÊ¿äÇÑ ¸ðµç ±â¼ú µµ¸é°ú º¸°í¼¸¦ »ý¼ºÇÒ ¼ö ÀÖ½À´Ï´Ù.
±â¼ú ´ÙÀ̾î±×·¥ ¹× ÆÐ³Î Â÷Æ®
´ç»çÀÇ Àü±â ¼ÒÇÁÆ®¿þ¾î´Â ±ÍÇϰ¡ Ãß°¡·Î ¼öÁ¤Çϰí/¶Ç´Â °øÀ¯ÇÒ ¼ö ÀÖ´Â DWG µµ¸éÀ¸·Î ÇÁ·ÎÁ§Æ®ÀÇ ±â¼ú µµ¸éÀ» »ý¼ºÇÕ´Ï´Ù.
±â¼ú º¸°í¼ ¹× ÀÚÀç ¸ñ·Ï
Fine ELECÀº °è»ê °á°ú¿Í Àü±â ¼³ºñ¸¦ ±¸ÃàÇÏ´Â µ¥ ÇÊ¿äÇÑ °¢ ±¸¼º ¿ä¼Ò¿Í ÄÉÀ̺íÀÇ ¼ö·®À» ¼³¸íÇÏ´Â ÀÚÀç ¸í¼¼¼°¡ Æ÷ÇÔµÈ ¹®¼¸¦ »ý¼ºÇÕ´Ï´Ù. ÀÌ ¹® ¼ÀÇ ÅÛÇø´Àº »ç¿ëÀÚ Á¤ÀÇÇÒ ¼ö ÀÖÀ¸¸ç Ç¥½ÃÇÒ °á°ú¸¦ ¼±ÅÃÇÒ ¼ö ÀÖ½À´Ï´Ù.
ÇÁ·ÎÁ§Æ® µµ¸é
°Ç¹°ÀÇ Æò¸éµµ´Â °¢ ±¸¼º ¿ä¼ÒÀÇ ¼¼ºÎ Á¤º¸¸¦ Á¤ÀÇÇÏ´Â ·¹À̺íÀÌ ÀÖ´Â °è»ê °á°ú·Î ¾÷µ¥ÀÌÆ®µË´Ï´Ù. ±× °á°ú, Á¤ÀÇÇÑ ¸ðµç ¼ö½Å±â¿Í ³×Æ®¿öÅ©¸¦ º¸¿©ÁÖ ´Â DWG¿¡¼ Æò¸éµµ¸¦ »ý¼ºÇÒ ¼ö ÀÖ½À´Ï´Ù.

BIM
Àü±â ¼³°è ¹× °è»êÀ» À§ÇÑ BIMÀÇ Èû
1986³â¿¡ ¼³¸³µÈ 4MÀº °ÇÃà ¹× MEP¸¦ À§ÇÑ BIM ¼ÒÇÁÆ®¿þ¾î Àüü Á¦Ç°±ºÀ» ÅëÇØ BIM ºÐ¾ß¿¡¼ ¿À·£ °æÇèÀ» ½×¾ÒÀ¸¸ç, ù ¹øÂ° ¹öÀüÀº 1993³â¿¡ Ãâ½ÃµÇ ¾ú½À´Ï´Ù. 4M BIM ¼ÒÇÁÆ®¿þ¾î´Â Àü¹®°¡µé·ÎºÎÅÍ AutoCAD »ç¿ëÀÚ¿¡°Ô °¡Àå ½±°í ºü¸¥ ÀüȯÀ» Á¦°øÇÏ´Â BIM ¼ÒÇÁÆ®¿þ¾î·Î À¯¸íÇÕ´Ï´Ù. DWG¸¦ ±âº» ÆÄ ÀÏ Çü½ÄÀ¸·Î »ç¿ëÇϰí AutoCAD¿Í À¯»çÇÑ ¸ð¾ç°ú ´À³¦À» Á¦°øÇÏ´Â À¯ÀÏÇÑ ¼ÒÇÁÆ®¿þ¾îÀ̱⠶§¹®ÀÔ´Ï´Ù.
FineELEC¿¡¼ÀÇ BIM ¼³°è ¹× Çù¾÷
FineELECÀÇ Á¤±³ÇÑ BIM ±â¼úÀº »ý»ê¼ºÀ» ³ô¿©ÁÝ´Ï´Ù. ¼ÒÇÁÆ®¿þ¾î´Â »ç¿ëÀÚ ¸¦ "ÀÌÇØ"Çϰí, ½º¸¶Æ® ¸ðµ¨·¯¿Í »ç¿ë °¡´ÉÇÑ ±¸¼º ¿ä¼Ò ¶Ç´Â BIM °´Ã¼ ¶óÀÌ ºê·¯¸®ÀÇ µµ¿òÀ¸·Î °Ç¹°À» ÈξÀ ´õ ºü¸£°í ½±°Ô ±×¸± ¼ö ÀÖ½À´Ï´Ù.
´ç»çÀÇ Àü±â ¼ÒÇÁÆ®¿þ¾î¿¡´Â ±ä¹ÐÇÏ°Ô Çù¾÷ÇÏ´Â °è»ê ¸ðµâ°ú ¼³°è ¸ðµâÀÌ Æ÷ÇԵǾî ÀÖ½À´Ï´Ù. Fine ELECÀº °£´ÜÈ÷ BIM ¸ðµ¨À» ÀÐ¾î ¼³Ä¡¸¦ ÀÌÇØÇÏ°í °è»êÀ» ÁøÇàÇÑ ´ÙÀ½ ÃÖÁ¾ÀûÀ¸·Î °è»ê °á°ú·Î Àü±â ¼³Ä¡¸¦ ¾÷µ¥ÀÌÆ®ÇÕ´Ï´Ù.
¸¶Áö¸·À¸·Î, ´Ù¸¥ BIM ¼ÒÇÁÆ®¿þ¾î¿Í Çù¾÷ÇÏ°í µ¿ÀÏÇÑ ÇÁ·ÎÁ§Æ®¸¦ ÁøÇàÇÏ´Â ´Ù¸¥ °ÇÃà°¡ ¹× ¿£Áö´Ï¾î¿Í Àü±â ¼³ºñ¸¦ °øÀ¯ÇÒ ¼ö ÀÖ½À´Ï´Ù.
´ç»çÀÇ Àü±â ¼ÒÇÁÆ®¿þ¾î¿¡´Â ±ä¹ÐÇÏ°Ô Çù¾÷ÇÏ´Â °è»ê ¸ðµâ°ú ¼³°è ¸ðµâÀÌ Æ÷ÇԵǾî ÀÖ½À´Ï´Ù. Fine ELECÀº °£´ÜÈ÷ BIM ¸ðµ¨À» ÀÐ¾î ¼³Ä¡¸¦ ÀÌÇØÇÏ°í °è»êÀ» ÁøÇàÇÑ ´ÙÀ½ ÃÖÁ¾ÀûÀ¸·Î °è»ê °á°ú·Î Àü±â ¼³Ä¡¸¦ ¾÷µ¥ÀÌÆ®ÇÕ´Ï´Ù.
¸¶Áö¸·À¸·Î, ´Ù¸¥ BIM ¼ÒÇÁÆ®¿þ¾î¿Í Çù¾÷ÇÏ°í µ¿ÀÏÇÑ ÇÁ·ÎÁ§Æ®¸¦ ÁøÇàÇÏ´Â ´Ù¸¥ °ÇÃà°¡ ¹× ¿£Áö´Ï¾î¿Í Àü±â ¼³ºñ¸¦ °øÀ¯ÇÒ ¼ö ÀÖ½À´Ï´Ù.
ºñ¿ë ÃßÁ¤ ¹× ÀÚÀç ¸ñ·Ï(BoM)
ÇÁ·ÎÁ§Æ®¿¡¼ BIM Á¤º¸¸¦ ÃßÃâÇÏ¿© ºñ¿ëÀ» Áï½Ã °è»êÇϰí ÀÚÀç ¸ñ·ÏÀ» ÀÛ ¼ºÇÒ ¼öµµ ÀÖ½À´Ï´Ù.











