
°¡½º ³×Æ®¿öÅ© ¼³°è

Fine GAS´Â °ÇÃà ¹× ¿£Áö´Ï¾î¸µÀ» À§ÇÑ 4M BIM ¼ÒÇÁÆ®¿þ¾î Á¦Ç°±º ¿¡ ¼ÓÇÕ´Ï´Ù. ±â¼úÀ» Ȱ¿ëÇÏ¿© DWG¿¡¼ Á÷Á¢ ÀÛ¾÷Çϰí AutoCAD¿Í À¯»çÇÑ È¯°æÀ» Á¦°øÇÕ´Ï´Ù. 4M BIM ¼ÒÇÁÆ®¿þ¾î´Â BIM Àü¹®°¡¿¡°Ô AutoCAD ¶Ç´Â CAD »ç¿ëÀÚ¸¦ À§ÇÑ BIMÀ¸·ÎÀÇ °¡Àå ½±°í Àú·ÅÇÑ ¸¶ÀÌ ±×·¹À̼ÇÀ» Á¦°øÇÏ´Â °ÍÀ¸·Î À¯¸íÇÕ´Ï´Ù.
»õ·Î¿î FineGAS 19 ÁÖ¿ä ¾÷±×·¹À̵忡 °í±Þ ±â´ÉÀÌ Ãß°¡µÊ
BIM Çõ½ÅÀû µðÀÚÀÎ: ODA-Teigha ¶óÀ̺귯¸®¿Í 64ºñÆ® ¾ÆÅ°ÅØÃ³¸¦ ±â¹ÝÀ¸·Î ÇÑ Àüü ÄÚµå À籸¼ºÀ» ÅëÇÑ »õ·Î¿î BIM µðÀÚÀÎÀ¸·Î µð½ºÇ÷¹ÀÌ ¿£Áø°ú ¿ ±â/ÀúÀå ¹× Àбâ/¾²±â ±â´É¿¡¼ Ź¿ùÇÑ ¼º´ÉÀ» º¸ÀåÇÕ´Ï´Ù.
»õ·Î¿î ÀÎÅÍÆäÀ̽º: ¸®º» ¸Þ´º, Çâ»óµÈ µµ±¸ ¸ðÀ½, Á¤±³ÇÑ ¼Ó¼º ÆÐ³Î, BIM ¿£ ÅÍÆ¼¸¦ À§ÇÑ Çâ»óµÈ ´ëÈ »óÀÚ, ±¤¹üÀ§ÇÑ ±×¸³ »ç¿ëÀ» Æ÷ÇÔÇÑ »õ·Î¿î BIM ÀÎÅÍÆäÀ̽º ÀÔ´Ï´Ù.
°í±Þ ¸ðµ¨¸µ ±â´É
- »õ·Î¿î BIM °´Ã¼(¿¹: ¸ðµç ¸ð¾çÀÇ º®, ¸ð¼¸® °³±¸ºÎ, ÇÕ¼º °Ç¹° ¿ä¼Ò°¡ ÀÖ´Â º® Á¶ÀÎÆ®ÀÇ ¿¬¼Ó Ç¥¸é µî)
- È®ÀåµÈ ¼Ó¼º ÆÐ³Î°ú ÇÊÅÍ ¼±ÅÃ, ±×¸³ »ç¿ëÀ» ÅëÇØ BIM °´Ã¼¸¦ ºü¸£°Ô ÆíÁý ÇÒ ¼ö ÀÖ½À´Ï´Ù.
- Áö´ÉÇü ºôµù ·¹º§/Ãþ °ü¸®(Xrefs·Î¼ÀÇ À̹ÌÁö, ½º¸¶Æ® ·¹º§ ÆíÁý±â µî). °¡½º/HVAC/¹è°ü/Àü±â ³×Æ®¿öÅ© ¼³°è ½Ã Ãæµ¹ °¨Áö
- °ø°£¿¡¼ ´Ù¾çÇÑ ³ôÀ̸¦ Á¤ÀÇ/ÆíÁýÇÒ ¼ö ÀÖ´Â À¯¿¬¼º.
- ¼Ó¼º ÆÐ³ÎÀ» ÅëÇØ ³×Æ®¿öÅ© Á÷°æ/Å©±â(Áï, ¿øÇÏ´Â Ä¡¼ö)¸¦ ½Ç½Ã°£À¸·Î Æí ÁýÇÒ ¼ö ÀÖ´Â ¿É¼ÇÀÔ´Ï´Ù.
- 3D °ÇÃà ¸ðµ¨ ³» 3D °Ç¹° ¼ºñ½º ¼³Ä¡ µµ¸é ÅëÇÕ
- °Ç¹° ¼Ð°ú MEP ¼³ºñ(ÆÄÀÌÇÁ ³×Æ®¿öÅ©, °ø±â ´öÆ® ³×Æ®¿öÅ© µî)¸¦ »ç½ÇÀû À¸·Î º¼ ¼ö ÀÖ´Â °íǰÁúÀÇ ºü¸¥ ·»´õ¸µÀÔ´Ï´Ù.
¿Ïº®ÇÑ BIM ȣȯ¼º ¹× »óÈ£ ¿î¿ë¼º: ¸ðµç BIM ¾ÖÇø®ÄÉÀ̼Ç(¿¹: Revit, Archicad µî)°úÀÇ ÃÖ´ë »óÈ£ ¿î¿ë¼ºÀ» Á¦°øÇϰí FINE-MEP ¼öÁ÷ ºÐ¾ß»Ó¸¸ ¾Æ ´Ï¶ó IDEA¿Í FineGREEN°úµµ ¿øÈ°ÇÏ°Ô ÅëÇյ˴ϴÙ.
»õ·Î¿î °·ÂÇÑ CAD ¿£Áø: ÃֽŠ4MCAD v.19ÀÇ ¸ðµç »õ·Î¿î ±â´ÉÀ» ³»ÀåÇÏ¿© ±× ¾î´À ¶§º¸´Ù ´õ¿í °·ÂÇÑ ¿£ÁøÀÔ´Ï´Ù.
FineGAS ±â´É ¹× ÇÏÀ̶óÀÌÆ®
½¬¿î Àüȯ
CAD »ç¿ëÀÚ¸¦ À§ÇÑ BIM ¹× °¡½º ³×Æ®¿öÅ© ¼³Ä¡ ¼ÒÇÁÆ®¿þ¾î·ÎÀÇ °¡Àå ½¬¿î Àüȯ
Fine GAS¿¡¼´Â Æú¸®¶óÀÎ, Æ®¸®¹Ö, È®Àå, ¿£Æ¼Æ¼ ½º³À, º¹»ç µî ¸ðµç CAD »ç ¿ëÀÚ¿¡°Ô Ä£¼÷ÇÑ °£´ÜÇÑ 2D ¸í·ÉÀ» »ç¿ëÇÏ¿© 2D ¶Ç´Â 3D·Î BIM ÇÁ·ÎÁ§Æ® ¸¦ ¸¸µé ¼ö ÀÖ½À´Ï´Ù. FineGAS´Â ÃÖ÷´Ü BIM ±â¼ú°ú AutoCAD¿Í À¯»çÇÑ ¸ð ¾ç°ú ´À³¦À» °áÇÕÇÏ¿© ÇÁ·ÎÁ§Æ®¿Í ³×Æ®¿öÅ©¸¦ ´õ ºü¸£°í ½±°Ô ±×¸± ¼ö ÀÖµµ ·Ï µµ¿ÍÁÝ´Ï´Ù.
2D·Î ±×¸®¸é ¸ðµç 3D°¡ ÀÚµ¿À¸·Î »ý¼ºµË´Ï´Ù.
FineGAS¿¡´Â 2D ¶Ç´Â 3D·Î °Ç¹°À» ±×¸®´Â µ¥ ÇÊ¿äÇÑ ¸ðµç µµ±¸°¡ Æ÷ÇԵǾî ÀÖÁö¸¸ ÇÊ¿äÇÏÁö ¾ÊÀº °æ¿ì ´Ü¼øÈ÷ Æò¸éµµÀÇ 2D DWG µµ¸éÀ» »ðÀÔÇÏ¿© ¹è °æÀ¸·Î »ç¿ëÇÏ°í ¹è°ü ¼³Ä¡¿¡ ÁýÁßÇÒ ¼ö ÀÖ½À´Ï´Ù. CAD ±â´ÉÀ» »ç¿ëÇÏ¿© ºü ¸£°Ô º®À» ±×¸± ¼öµµ ÀÖ½À´Ï´Ù.
BIM °´Ã¼·Î 3D·Î °Ç¹°À» ±×¸®´Â °ÍÀº ÆÄÀÌÇÁ °è»êÀ» ÁøÇàÇÏ´Â µ¥ Çʼö´Â ¾Æ ´ÏÁö¸¸ ¸î ¹øÀÇ Å¬¸¯À¸·Î ÇÒ ¼öµµ ÀÖ½À´Ï´Ù. °è»ê°ú ¼³°è´Â µ¶¸³ÀûÀÎ ¸ðµâÀÔ ´Ï´Ù. °£´ÜÇÑ ÇÁ·ÎÁ§Æ®°¡ ÀÖ´Â °æ¿ì °è»ê ¸ðµâ¸¸ »ç¿ëÇÏ¿© Ç¥¿¡ µ¥ÀÌÅ͸¸ ÀÔ ·ÂÇÏ°í °è»êÀ» ÁøÇàÇÒ ¼ö ÀÖ½À´Ï´Ù.
3D·Î °Ç¹°À» ±×¸®·Á¸é AutoBLD ¸Þ´ºÀÇ Áö´ÉÇü ¸Å°³º¯¼ö °´Ã¼¸¦ »ç¿ëÇÏ¿© Æò¸éµµ¿¡ ÁýÁßÇϱ⸸ ÇÏ¸é µË´Ï´Ù. ¸î ¹ø¸¸ Ŭ¸¯ÇÏ¸é º®, °³±¸ºÎ, ½½·¡ºê, °è ´Ü µîÀ» Á¤ÀÇÇÒ ¼ö ÀÖÀ¸¸ç FineGAS°¡ 3D¸¦ ºôµåÇÕ´Ï´Ù. °´Ã¼¸¦ °£´ÜÈ÷ µÎ ¹ø Ŭ¸¯ÇÏ¸é ¼öÁ¤ÇÒ ¼ö ÀÖ´Â ¼Ó¼ºÀÌ Ç¥½ÃµË´Ï´Ù. ´Ù¸¥ ¿ÜºÎ ¼ÒÇÁÆ®¿þ¾î¸¦ »ç ¿ëÇÏÁö ¾Ê°íµµ BIM ¸ðµ¨À» ¸¸µé°Å³ª ¼öÁ¤ÇÏ´Â µ¥ ÇÊ¿äÇÑ ¸ðµç µµ±¸°¡ ÀÖ½À ´Ï´Ù.
¶Ç´Â ´Ù¸¥ 4M BIM ¼ÒÇÁÆ®¿þ¾î·Î ¸¸µç ÇÁ·ÎÁ§Æ®¸¦ ¿ ¼öµµ ÀÖÀ¸¸ç °Ç¹°À» ±× ¸± Çʿ䰡 ¾ø½À´Ï´Ù. ¿¹¸¦ µé¾î IDEA Architecture·Î ¸¸µç ÇÁ·ÎÁ§Æ®¸¦ ¿ ¼ö ÀÖ½À´Ï´Ù.
BIM °´Ã¼·Î 3D·Î °Ç¹°À» ±×¸®´Â °ÍÀº ÆÄÀÌÇÁ °è»êÀ» ÁøÇàÇÏ´Â µ¥ Çʼö´Â ¾Æ ´ÏÁö¸¸ ¸î ¹øÀÇ Å¬¸¯À¸·Î ÇÒ ¼öµµ ÀÖ½À´Ï´Ù. °è»ê°ú ¼³°è´Â µ¶¸³ÀûÀÎ ¸ðµâÀÔ ´Ï´Ù. °£´ÜÇÑ ÇÁ·ÎÁ§Æ®°¡ ÀÖ´Â °æ¿ì °è»ê ¸ðµâ¸¸ »ç¿ëÇÏ¿© Ç¥¿¡ µ¥ÀÌÅ͸¸ ÀÔ ·ÂÇÏ°í °è»êÀ» ÁøÇàÇÒ ¼ö ÀÖ½À´Ï´Ù.
3D·Î °Ç¹°À» ±×¸®·Á¸é AutoBLD ¸Þ´ºÀÇ Áö´ÉÇü ¸Å°³º¯¼ö °´Ã¼¸¦ »ç¿ëÇÏ¿© Æò¸éµµ¿¡ ÁýÁßÇϱ⸸ ÇÏ¸é µË´Ï´Ù. ¸î ¹ø¸¸ Ŭ¸¯ÇÏ¸é º®, °³±¸ºÎ, ½½·¡ºê, °è ´Ü µîÀ» Á¤ÀÇÇÒ ¼ö ÀÖÀ¸¸ç FineGAS°¡ 3D¸¦ ºôµåÇÕ´Ï´Ù. °´Ã¼¸¦ °£´ÜÈ÷ µÎ ¹ø Ŭ¸¯ÇÏ¸é ¼öÁ¤ÇÒ ¼ö ÀÖ´Â ¼Ó¼ºÀÌ Ç¥½ÃµË´Ï´Ù. ´Ù¸¥ ¿ÜºÎ ¼ÒÇÁÆ®¿þ¾î¸¦ »ç ¿ëÇÏÁö ¾Ê°íµµ BIM ¸ðµ¨À» ¸¸µé°Å³ª ¼öÁ¤ÇÏ´Â µ¥ ÇÊ¿äÇÑ ¸ðµç µµ±¸°¡ ÀÖ½À ´Ï´Ù.
¶Ç´Â ´Ù¸¥ 4M BIM ¼ÒÇÁÆ®¿þ¾î·Î ¸¸µç ÇÁ·ÎÁ§Æ®¸¦ ¿ ¼öµµ ÀÖÀ¸¸ç °Ç¹°À» ±× ¸± Çʿ䰡 ¾ø½À´Ï´Ù. ¿¹¸¦ µé¾î IDEA Architecture·Î ¸¸µç ÇÁ·ÎÁ§Æ®¸¦ ¿ ¼ö ÀÖ½À´Ï´Ù.
AutoCAD¿ÍÀÇ ÃÖ´ë ȣȯ¼º
´Ù¸¥ BIM ¹è°ü ¼ÒÇÁÆ®¿þ¾î¿Í ´Þ¸® FineGAS´Â DWG¿¡¼ Á÷Á¢ ÆÄÀÏÀ» »ý¼ºÇÏ °í CAD ¼ÒÇÁÆ®¿þ¾î¿¡¼ º¼ ¼ö ¾ø´Â Á¤±³ÇÑ BIM °´Ã¼¸¦ AutoCAD¢ç¿¡¼ Ãß °¡·Î ÆíÁýÇÒ ¼ö ÀÖ´Â °£´ÜÇÑ º¤ÅÍ·Î º¯È¯ÇÏ´Â ±â´ÉÀ» Æ÷ÇÔÇÕ´Ï´Ù. µû¶ó¼ ´Ù ¸¥ Àü¹®°¡¿Í 2D ¶Ç´Â 3D ÆÄÀÏÀ» °øÀ¯ÇÏ´Â °ÍÀÌ ÈξÀ ½±½À´Ï´Ù.
Àüü CAD ¼ÒÇÁÆ®¿þ¾î Æ÷ÇÔ
ÀÌ ¹è°ü ¼ÒÇÁÆ®¿þ¾î¿¡´Â AutoCAD¢ç¿¡ ´ëÇÑ ´ë¾ÈÀÎ 4MCADÀÇ ¸ðµç ±â´ÉÀÌ Æ÷ÇԵǾî ÀÖ½À´Ï´Ù. µÎ °¡Áö ¼ÒÇÁÆ®¿þ¾î¸¦ Çϳª·Î ¾òÀ» ¼ö ÀÖÀ¸¹Ç·Î CAD¸¦ »ç¿ëÇÏ¿© ÀϺΠDWG µµ¸éÀ» ÆíÁýÇÏ´Â µ¿½Ã¿¡ BIM ±â¼úÀ» »ç¿ëÇÏ¿© ´ëºÎºÐ ÀÇ ÇÁ·ÎÁ§Æ®¿¡¼ ÀÛ¾÷ÇÒ ¶§ »ý»ê¼ºÀ» ³ôÀÏ ¼ö ÀÖ½À´Ï´Ù. ÃÖ¼ÒÇÑ ¾ÈÀüÇÏ´Ù°í ´À³¢°í ÀÚ½ÅÀÇ ¼Óµµ¿¡ ¸ÂÃç BIMÀ¸·Î ¸¶À̱׷¹À̼ÇÇÒ ¼ö ÀÖ½À´Ï´Ù.
³×Æ®¿öÅ©
Áö´ÉÇü ¹è°ü ¼³°è
´Ù¸¥ BIM ¼ÒÇÁÆ®¿þ¾î¿Í´Â ´Þ¸® FineGASÀÇ ÃֽŠBIM ±â¼úÀº ¼Óµµ¸¦ Èñ»ýÇØ ¼ ÀÌ·ç¾îÁöÁö ¾Ê½À´Ï´Ù. ¿ÀÈ÷·Á ±× ¹Ý´ëÀÔ´Ï´Ù. ¸î °³ÀÇ ¼±¸¸ ±×¸®¸é ¼ÒÇÁ Æ®¿þ¾î°¡ ³ª¸ÓÁö¸¦ ó¸®ÇÕ´Ï´Ù.
±¤¹üÀ§ÇÑ ¿ä¼Ò ¹× ÇÇÆÃ ¶óÀ̺귯¸®
FineGAS¿¡´Â ¿å½Ç, ÁÖ¹æ ¹× °Ç¹°ÀÇ °¡½º ³×Æ®¿öÅ©¿¡ ´ëÇØ »ó»óÇÒ ¼ö ÀÖ´Â ¸ð µç ´Ù¾çÇÑ ½Ã³ª¸®¿À¸¦ À§ÇÑ ±¤¹üÀ§ÇÑ À¯¾Ð ¼ö¿ëü ¹× ÇÇÆÃ ¶óÀ̺귯¸®°¡ Æ÷ ÇԵǾî ÀÖ½À´Ï´Ù. ÀÌ·¯ÇÑ ¶óÀ̺귯¸®´Â »ç¿ëÀÚ°¡ ½Éº¼À» º¯°æÇÏ°í ´õ ¸¹Àº ±¸¼º ¿ä¼Ò¸¦ Ãß°¡ÇÒ ¼ö ÀÖÀ¸¹Ç·Î »ç¿ëÀÚ°¡ È®ÀåÇÒ ¼öµµ ÀÖ½À´Ï´Ù.
³×Æ®¿öÅ© ¼³°è(ÀÚµ¿ ¶ó¿ìÆÃ)
ÆÄÀÌÇÁ´Â °£´ÜÇÑ ¸í·É(Æú¸®¶óÀθ¸ »ç¿ë)À¸·Î ±×¸± ¼ö ÀÖÁö¸¸, "º®°ú ÆòÇàÇÑ ÆÄÀÌÇÁ"³ª "¼ö½Å±â¿¡ ÀÚµ¿À¸·Î ¿¬°á"°ú °°Àº Àü¹®ÀûÀÎ ¶ó¿ìÆÃ ¸í·ÉÀ» Ȱ¿ë ÇÏ¿© ÇÁ·Î¼¼½º ¼Óµµ¸¦ ³ôÀÏ ¼öµµ ÀÖ½À´Ï´Ù.
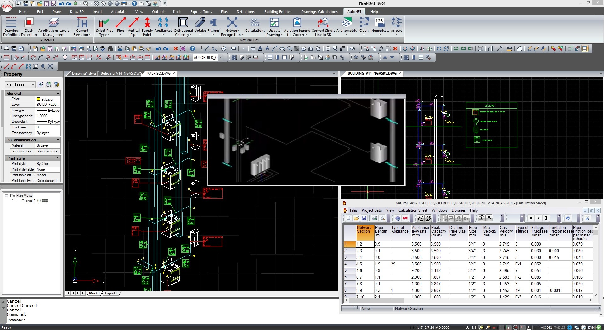
°è»ê¿¡¼ µµ¸é ¾÷µ¥ÀÌÆ®
°è»êÀ» ¼öÇàÇÑ ÈÄ °è»ê ¸ðµâ¿¡¼ µµ¸éÀ» ¾÷µ¥ÀÌÆ®ÇÏ°í °¢ ±¸¼º ¿ä¼Ò¿¡ ´ëÇØ Ç¥½ÃÇÏ·Á´Â °á°ú¿Í ¼¼ºÎ Á¤º¸¸¦ º¸¿©ÁÖ´Â ¶óº§À» Æò¸éµµ¿¡ »ðÀÔÇÕ´Ï´Ù. ÆÄ ÀÌÇÁ Á÷°æÀÌ °è»êµÇ°í ¼³°è¿¡¼ ÆÄÀÌÇÁ Å©±â°¡ Á¶Á¤µË´Ï´Ù.
FineGAS´Â ¶ÇÇÑ ±âÈ£ÀÇ ¹ü·Ê¸¦ ÀÚµ¿À¸·Î ¸¸µå´Â µ¥ µµ¿òÀ» ÁÖ¸ç, ¹°·Ð ¼³ºñ ÀÇ ¼öÁ÷ ´ÙÀ̾î±×·¥°ú °°Àº ¸ðµç ±â¼ú µµ¸éµµ »ý¼ºÇÕ´Ï´Ù.
FineGAS´Â ¶ÇÇÑ ±âÈ£ÀÇ ¹ü·Ê¸¦ ÀÚµ¿À¸·Î ¸¸µå´Â µ¥ µµ¿òÀ» ÁÖ¸ç, ¹°·Ð ¼³ºñ ÀÇ ¼öÁ÷ ´ÙÀ̾î±×·¥°ú °°Àº ¸ðµç ±â¼ú µµ¸éµµ »ý¼ºÇÕ´Ï´Ù.
°è»ê
°¡½º ¼³Ä¡ ºñ¿ë °è»ê
FineGASÀÇ °è»ê ¸ðµâÀº ¼³Ä¡ µµ¸é°ú ±ä¹ÐÇÏ°Ô »óÈ£ ÀÛ¿ëÇÕ´Ï´Ù. °è»êÀº ³Î ¸® ¹Þ¾Æµé¿©Áø EN1775(À¯·´ Ç¥ÁØ) ¹× DVGW-TRGI(µ¶ÀÏ ÀÏ¹Ý ÇÁ·¹ÀÓ¿öÅ©) ¿¡ µû¶ó ¼öÇàµË´Ï´Ù.
µµ¸é¿¡¼ °è»ê
°è»ê ±¸¼º ¿ä¼Ò´Â AutoNET ¸í·É ±×·ìÀ» ÅëÇØ ¼³Ä¡ µµ¸é¿¡¼ ÀÚµ¿À¸·Î ¾÷µ¥ ÀÌÆ®µË´Ï´Ù. ¼³Ä¡ ³×Æ®¿öÅ©´Â ÀÎ½ÄµÇ¾î °è»ê ½ÃÆ®·Î Àü¼ÛµË´Ï´Ù. °è»êÀº ±¹ Á¦ ¹× À¯·´ Ç¥ÁØÀ» ±â¹ÝÀ¸·Î Çϴ dzºÎÇÑ ¹æ¹ý·ÐÀû ¹è°æ¿¡ ÀÇÁ¸ÇÕ´Ï´Ù. ¿¹¸¦ µé¾î ³×Æ®¿öÅ©ÀÇ ¹Ì·¡ È®ÀåÀ» ¿¹»óÇÏ·Á´Â °æ¿ì ÀÌ·¯ÇÑ µ¥ÀÌÅ͸¦ ¼öÁ¤ÇÒ ¼ö µµ ÀÖ½À´Ï´Ù.
¸î ¹øÀÇ Å¬¸¯¸¸À¸·Î ¸ðµç °á°ú¸¦ È®ÀÎÇϼ¼¿ä
¹è°ü °è»ê ¿Ü¿¡µµ FineGAS´Â ÇÊ¿äÇÑ ¸ðµç Àåºñ, ¾Ð·Â °ÇÏ, À¯·® µîÀ» °è»ê Çϰí, ÀÚÀç û±¸¼, ±â¼ú ¼³¸í/»ç¾ç ¹× ±âŸ °á°úµµ °è»êÇÕ´Ï´Ù.
°è»êÀ» ¾ò´Â ¶Ç ´Ù¸¥ ¹æ¹ýÀº Áö´ÉÇü FineGAS ¸¶¹ý»ç¸¦ »ç¿ëÇÏ´Â °ÍÀÔ´Ï´Ù. »ç¿ëÀÚ´Â ±âÁ¸ ÅÛÇø´(½½¶óÀ̵å)À» ÅëÇØ ½Ã°¢ÀûÀ¸·Î °¡½º ³×Æ®¿öÅ© ¼³Ä¡¸¦ ¼³¸íÇÑ ´ÙÀ½ ¸¶¹ý»ç°¡ ¼öÁ÷ ´ÙÀ̾î±×·¥°ú °è»ê °á°ú¸¦ »ý¼ºÇÕ´Ï´Ù.
°è»êÀ» ¾ò´Â ¶Ç ´Ù¸¥ ¹æ¹ýÀº Áö´ÉÇü FineGAS ¸¶¹ý»ç¸¦ »ç¿ëÇÏ´Â °ÍÀÔ´Ï´Ù. »ç¿ëÀÚ´Â ±âÁ¸ ÅÛÇø´(½½¶óÀ̵å)À» ÅëÇØ ½Ã°¢ÀûÀ¸·Î °¡½º ³×Æ®¿öÅ© ¼³Ä¡¸¦ ¼³¸íÇÑ ´ÙÀ½ ¸¶¹ý»ç°¡ ¼öÁ÷ ´ÙÀ̾î±×·¥°ú °è»ê °á°ú¸¦ »ý¼ºÇÕ´Ï´Ù.
2D/3D Ãâ·Â
¸ðµç ±â¼ú µµ¸éÀ» ÀÚµ¿À¸·Î °¡Á®¿É´Ï´Ù
³×Æ®¿öÅ© ¼³°è¿Í °è»êÀ» ÁøÇàÇÏ°í ³ª¸é MEP ¼ÒÇÁÆ®¿þ¾î¸¦ »ç¿ëÇÏ¿© ÇÊ¿äÇÑ ¸ðµç ±â¼ú µµ¸é°ú º¸°í¼¸¦ »ý¼ºÇÒ ¼ö ÀÖ½À´Ï´Ù.
¼öÁ÷ ´ÙÀ̾î±×·¥/Â÷Æ®
´ç»çÀÇ MEP ¼ÒÇÁÆ®¿þ¾î´Â °¡½º ³×Æ®¿öÅ© ¼³Ä¡ÀÇ ¼öÁ÷ ´ÙÀ̾î±×·¥À» DWG µµ¸éÀ¸·Î »ý¼ºÇØ ÁÖ¸ç, À̸¦ Ãß°¡·Î ¼öÁ¤Çϰí/¶Ç´Â °øÀ¯ÇÒ ¼ö ÀÖ½À´Ï´Ù.
±â¼ú º¸°í¼ ¹× ÀÚÀç ¸ñ·Ï
FineGAS´Â °è»ê °á°ú¿Í ¼³ºñ¸¦ ±¸ÃàÇÏ´Â µ¥ ÇÊ¿äÇÑ °¢ ¿ä¼ÒÀÇ ¼ö·®À» ¼³¸í ÇÏ´Â ÀÚÀç ¸í¼¼¼°¡ Æ÷ÇÔµÈ ¹®¼¸¦ »ý¼ºÇÕ´Ï´Ù. ÀÌ ¹®¼ÀÇ ÅÛÇø´Àº »ç¿ëÀÚ Á¤ÀÇÇÒ ¼ö ÀÖÀ¸¸ç Ç¥½ÃÇÒ °á°ú¸¦ ¼±ÅÃÇÒ ¼ö ÀÖ½À´Ï´Ù.
ÇÁ·ÎÁ§Æ® µµ¸é
°Ç¹°ÀÇ Æò¸éµµ´Â °¢ ±¸¼º ¿ä¼ÒÀÇ ¼¼ºÎ Á¤º¸¸¦ Á¤ÀÇÇÏ´Â ·¹À̺íÀÌ ÀÖ´Â °è»ê °á°ú·Î ¾÷µ¥ÀÌÆ®µË´Ï´Ù. ±× °á°ú, Á¤ÀÇÇÑ ¸ðµç ¼ö½Å±â¿Í ³×Æ®¿öÅ©¸¦ º¸¿©ÁÖ ´Â DWG¿¡¼ Æò¸éµµ¸¦ »ý¼ºÇÒ ¼ö ÀÖ½À´Ï´Ù.
BIM
¹è°ü ¼³Ä¡¸¦ À§ÇÑ BIM ¼ÒÇÁÆ®¿þ¾îÀÇ ÈûÀ» ´À²¸º¸¼¼¿ä
4MÀº 1993³â óÀ½ Ãâ½ÃµÈ °ÇÃà ¹× ¿£Áö´Ï¾î¸µ¿ë BIM ¼ÒÇÁÆ®¿þ¾î Àüü Á¦Ç° ±ºÀ» ÅëÇØ BIM ºÐ¾ß¿¡¼ °¡Àå ¿À·£ °æÇèÀ» º¸À¯ÇÑ È¸»ç Áß ÇϳªÀÔ´Ï´Ù. 4M BIM ¼ÒÇÁÆ®¿þ¾î´Â AutoCAD »ç¿ëÀÚ¿¡°Ô °¡Àå ½¬¿î ¸¶À̱׷¹À̼ÇÀ» Á¦°øÇÏ ´Â BIM ¼ÒÇÁÆ®¿þ¾î·Î Àü¹®°¡µé·ÎºÎÅÍ À¯¸íÇÕ´Ï´Ù. DWG¸¦ ±âº» ÆÄÀÏ Çü½Ä À¸·Î »ç¿ëÇϰí AutoCAD¿Í À¯»çÇÑ ¸ð¾ç°ú ´À³¦À» Á¦°øÇÏ´Â À¯ÀÏÇÑ ¼ÒÇÁÆ®¿þ ¾îÀ̱⠶§¹®ÀÔ´Ï´Ù.
FineGASÀÇ BIM ¼³°è ¹× Çù¾÷
°è»ê ¸ðµâ°ú BIM ¸ðµ¨ÀÇ ±ä¹ÐÇÑ »óÈ£ ÀÛ¿ëÀ» ÅëÇØ ¸ðµ¨¿¡¼ Á÷Á¢ ¹è°ü ¼³Ä¡ ¿¡ ´ëÇÑ ¸ðµç °è»êÀ» ÇÒ ¼ö ÀÖ½À´Ï´Ù. FineGAS´Â ÇÁ·ÎÁ§Æ® µµ¸éÀ» Àоî ÇÁ·Î Á§Æ®, ³×Æ®¿öÅ© ¼Ó¼ºÀ» ÀÌÇØÇÏ°í °è»êÀ» ÁøÇàÇÑ ÈÄ ¸¶Áö¸·À¸·Î µµ¸éÀ» °á°ú ·Î ¾÷µ¥ÀÌÆ®ÇÕ´Ï´Ù.
¸¶Áö¸·À¸·Î, ´Ù¸¥ BIM ¼ÒÇÁÆ®¿þ¾î¿Í Çù¾÷Çϰí, °øÅë BIM ÇÁ·ÎÁ§Æ®¿¡ Ãß°¡ ÇÑ ºÐ¾ßº° ÄÜÅÙÃ÷¸¦ ´Ù¸¥ °ÇÃà°¡ ¹× ¿£Áö´Ï¾î¿Í °øÀ¯ÇÒ ¼ö ÀÖ½À´Ï´Ù.
BIM Á¤º¸¸¦ ÃßÃâÇÏ¿© »óÇϼöµµ ½Ã½ºÅÛ¿¡¼ »ý¼ºÇÑ ´Ù¾çÇÑ ¿ä¼ÒÀÇ ¼ö·®°ú ¼¼ºÎ Á¤º¸¸¦ º¸¿©ÁÖ´Â ÀÚÀç ¸í¼¼¼¸¦ ¸¸µé ¼öµµ ÀÖ½À´Ï´Ù. ºñ¿ëÀ» °è»êÇϰí ÇÊ¿äÇÑ ¿ä¼Ò¿Í ºÎ¼Óǰ¿¡ ´ëÇÑ ÀÚ¼¼ÇÑ ¼³¸íÀ» ¾òÀ» ¼ö ÀÖ½À´Ï´Ù.
¸¶Áö¸·À¸·Î, ´Ù¸¥ BIM ¼ÒÇÁÆ®¿þ¾î¿Í Çù¾÷Çϰí, °øÅë BIM ÇÁ·ÎÁ§Æ®¿¡ Ãß°¡ ÇÑ ºÐ¾ßº° ÄÜÅÙÃ÷¸¦ ´Ù¸¥ °ÇÃà°¡ ¹× ¿£Áö´Ï¾î¿Í °øÀ¯ÇÒ ¼ö ÀÖ½À´Ï´Ù.
BIM Á¤º¸¸¦ ÃßÃâÇÏ¿© »óÇϼöµµ ½Ã½ºÅÛ¿¡¼ »ý¼ºÇÑ ´Ù¾çÇÑ ¿ä¼ÒÀÇ ¼ö·®°ú ¼¼ºÎ Á¤º¸¸¦ º¸¿©ÁÖ´Â ÀÚÀç ¸í¼¼¼¸¦ ¸¸µé ¼öµµ ÀÖ½À´Ï´Ù. ºñ¿ëÀ» °è»êÇϰí ÇÊ¿äÇÑ ¿ä¼Ò¿Í ºÎ¼Óǰ¿¡ ´ëÇÑ ÀÚ¼¼ÇÑ ¼³¸íÀ» ¾òÀ» ¼ö ÀÖ½À´Ï´Ù.











